Дом 100 кв.м на участке 5 сот

Гостагаевская, ул Советская

Нас. пункт Гостагаевская
Код объекта 52941
Назначение ИЖС
Всего комнат 3
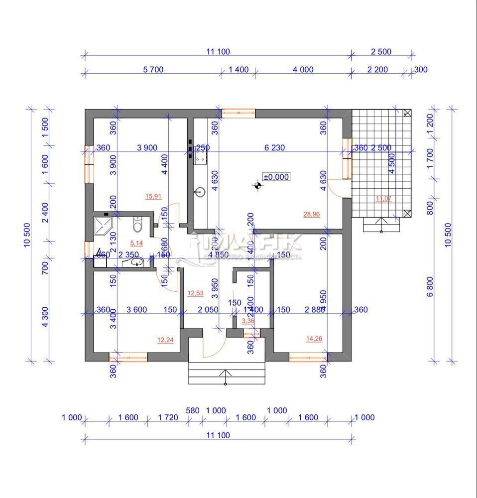
Площадь (м2) 100 / 40 / 25
Площадь участка 5 сот.
Фасад участка 20 м.
Этажей 1
Отопление инд. газовое
Газоснабжение центральное
Водоснабжение центральное
Канализация автономная
Электроснабжение есть
Ипотека да
Дата 18.08.2023

Описание

Продается одноэтажный кирпичный дом в стадии строительства в предчистовой отделке площадью 100 кв.м. на участке 5 сот. в ближайшем пригороде Анапы в очень удобном и красивом месте для проживания!

Будет получено право собственности - Вы покупаете готовый дом!

Станица Гостагаевская - автономная станица, есть все необходимое для жизни: школа, детские сады, поликлиника, магазины, аптеки, пункты выдачи заказов, почтаматы.

До моря и г. Анапы 20 минут на машине, транспортная развязка до города.

Центральное водоснабжение, свет 15 кВт. Возможность подключения газоснабжения.

Высокое качество строительных и отделочных материалов.

Планировка: прихожая, коридор, спальня гостевая, две изолированные спальни, санузел, просторная кухня-гостинная с выходом на террасу. Большой земельный участок с красивым видом.

В предчистовую отделку входит: штукатурка стен, шпаклевка стен, электроразводка, розетки, выключатели, водяные теплые полы, стяжка пола, радиаторы отопления, потолки подшиваются гипсокартоном.

По участку входит: отмостка под машиноместо, тропинка к дому, отмостка вокруг дома, ливневка, забор вокруг дома, завозная земля под насаждения, зона барбекю.

На заднем дворе есть возможность для строительства бани и бассейна.

Преимущество данного дома:

- закрытая территория;

- индивидуальная парковка;

- озеленение;

- асфальт;

- расположение дома в одном из красивейших мест станицы Гостагаевской.

Подходит ипотека (обговаривается отдельно), материнский капитал, сертификаты.

Звоните!

#доманапа
#продажадома
#ипотека
#жизньнаморе
#переездванапу
#продажа #доманапа #застройщиканапа #ипотека #недвижимость #переездванапу
#застройщиканапа #застройщик #анапа #недвижимость #ипотека #москва #купитьдом #переездванапу #жизньнаморе
#агентствонедвижимости #работа #квартира #дом #realtor #wellcom #агентпонедвижимости #пермь #город #сделка #здание #сбербанк #новосибирск #продажа #realty #архитектура #участок #риэлторанапа #калининград #земля #элитнаянедвижимость

Заявка на покупку, продажу недвижимости

CENTR COLL

+7 918 670-14-14

Заинтересовал объект? Оставьте нам свою контактную информацию, мы перезвоним и расскажем подробнее

Похожие объекты

Продажа

Дом 62 кв.м на участке 11 сот

Гостагаевская, ул Садовая
6 200 000 руб.
Подробнее
Продажа

Дом 47 кв.м на участке 9 сот

Гостагаевская, Луговой пер
6 200 000 руб.
Подробнее
Продажа

Дом 100 кв.м на участке 5 сот

Гостагаевская, ул Советская
6 700 000 руб.
Подробнее
Продажа

Дом 86 кв.м на участке 9 сот

Гостагаевская, ул Украинская
6 500 000 руб.
Подробнее
Продажа

Дом 85 кв.м на участке 5 сот

Гостагаевская, ул Советская
6 200 000 руб.
Подробнее

Мы поможем вам с выбором!