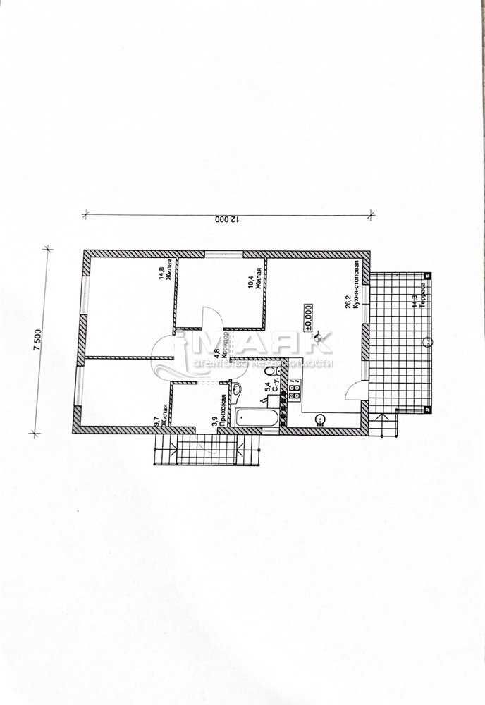
Дом 85 кв.м на участке 6 сот

Варениковская, ул Золотых

Нас. пункт Варениковская
Код объекта 15607
Назначение ИЖС
Всего комнат 3
Площадь (м2) 85 / 55 / 26
Площадь участка 6 сот.
Фасад участка 15 м.
Этажей 1
Отопление инд. газовое
Газоснабжение по меже
Водоснабжение по меже
Канализация автономная
Ипотека да
Дата 28.11.2023

Описание

Шикарный новый коттедж в лучшей станице на Юге.

Дом 85 квадратных метров на 6 сотках земли в СТАДИИ строительства и будет построен из современных высококачественных материалов, участок правильной формы, ДВА ФАСАДА.

Дом вводится в эксплуатацию, получается право собственности!

Вы покупаете готовый дом!

Коммуникации все автономные(центральный газ и вода оплачивается отдельно)!

Хорошие и дружелюбные соседи.

Будет выполнена предчистовая отделка с электроразводкой и выводами под розетки, выключатели и телевизоры.

Теплые полы по всему дому, в спальнях радиаторы отопления.

Уютная терраса на которую можно попасть из кухни-гостинной.

Есть возможность получить налоговый вычет!

Подходит ипотека.

Звоните и записывайтесь на просмотр прямо сейчас!

  • мансарда
  • угловой

Заявка на покупку, продажу недвижимости

CENTR COLL

+7 918 670-14-14

Заинтересовал объект? Оставьте нам свою контактную информацию, мы перезвоним и расскажем подробнее

Похожие объекты

Продажа

Дом 191.2 кв.м на участке 15.2 сот

Варениковская, ул Шугинская
5 500 000 руб.
Подробнее
Продажа

Дом 100 кв.м на участке 5 сот

Варениковская, ул Горького
5 500 000 руб.
Подробнее
Продажа

Дом 68 кв.м на участке 10.5 сот

Варениковская, ул Карла Маркса
4 600 000 руб.
Подробнее
Продажа

Таунхаус 73.6 кв.м на участке 2.75 сот

Варениковская, ул Романтиков
4 800 000 руб.
Подробнее
Продажа

Дом 100 кв.м на участке 5 сот

Варениковская, ул Кубанская
5 400 000 руб.
Подробнее

Мы поможем вам с выбором!