Дом 115 кв.м на участке 5.01 сот

Красный, ул Свободы

Нас. пункт Красный
Код объекта 12648
Назначение ИЖС
Всего комнат 4
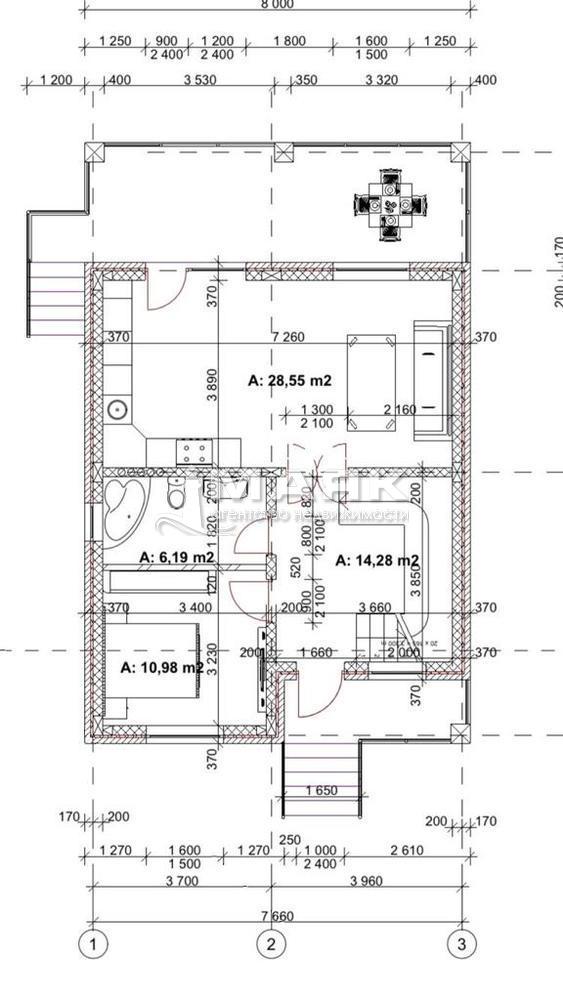
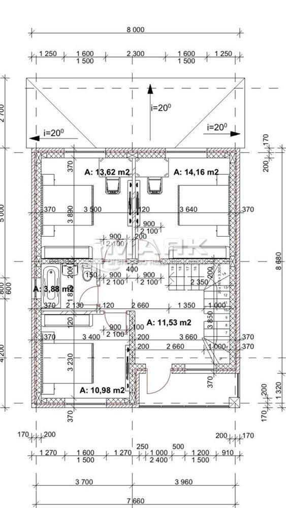
Площадь (м2) 115 / 60 / 27
Площадь участка 5.01 сот.
Фасад участка 15 м.
Этажей 2
Отопление инд. газовое
Газоснабжение ТУ
Водоснабжение центральное
Канализация автономная
Ипотека нет
Год сдачи 2021
Дата 21.07.2023

Описание

Продается новый 2 этажный жилой дом в Анапском районе, хутор Красный.
Год постройки: 2021.
Площадь: 115 кв.м.
Дом построен из керамзитового блока, утеплен, облицован кирпичом. Планировка стандартная: на первом этаже кухня-гостиная площадью 27 м2, гостевая комната, санузел. Из гостиной выход на крытую террасу; на втором этаже 3 спальни и санузел. В одной из спален есть балкон.
Отделка: предчистовая.
Коммуникации: газоснабжение, центральное водоснабжение, индивидуальное газовое отопление, автономная канализация.

Земельный участок.
Площадь: 501 кв.м. (5 соток).
Размер: фасад 15х24 м.
Категория земель: земли населённых пунктов.
Разрешенное использование: для индивидуального жилищного строительства.
Форма собственности: частная собственность.
Участок чистый, ровный.
Дом находится в хорошем современном районе хутора, в шаговой доступности магазины и остановка общественного транспорта. На сегодняшний день идут работы по благоустройству территории и установке забора.

Есть вопросы - Звони. Оперативный показ!

Заявка на покупку, продажу недвижимости

CENTR COLL

+7 918 670-14-14

Заинтересовал объект? Оставьте нам свою контактную информацию, мы перезвоним и расскажем подробнее

Похожие объекты

Продажа

Дом 154 кв.м на участке 5 сот

Красный, ул Дачная
11 600 000 руб.
Подробнее
Продажа

Дом 84.95 кв.м на участке 4.5 сот

Красный, Радужный пр-д
10 157 980 руб.
Подробнее
Продажа

Дом 120.4 кв.м на участке 5 сот

Красный, ул Кооперативная
10 000 000 руб.
Подробнее
Продажа

Дом 155.9 кв.м на участке 5.4 сот

Красный, ул Свободы
10 800 000 руб.
Подробнее
Продажа

Дом 120.4 кв.м на участке 5 сот

Красный, ул Кооперативная
10 000 000 руб.
Подробнее

Мы поможем вам с выбором!