Студия 24 кв.м, 6/16

Анапа, ул Верхняя дорога, 151

Нас. пункт Анапа
Код объекта 13690
Всего комнат 0
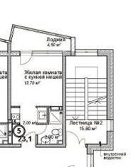
Площадь (м2) 24 / 15 / 3
Этаж 6
Этажей 16
Материал дома монолитно-каркасный
Отопление центральное
Санузел совмещенный
Балкон лоджия застеклена
Ипотека нет
Дата 10.02.2025

Описание

Студия в 5 минутах от песочного пляжа. Статус квартира, с пропиской. Отличный вариант для отдыха и сдачи!
ЖК "Кавказ" - это уникальный комплекс на проспекте, его отличает благоустроенная зеленая территория с детским площадками, беседками, футбольным полем, а также продуманная инфраструктура: собственный аквапарк, кафе на террасе, фитнес и медицинский центр More, магазин, аптека, столовая. Еще одним весомым отличием ЖК "Кавказ" является тот факт, что это единственный комплекс в районе проспекта с юридическим статусом жилого помещения, не апартаментов. Прогулка до ласкового моря и чистого песочного пляжа займет всего 5 минут через сосновую рощу!

В данном ЖК продается студия с ремонтом! Общая площадь 24 кв м, комфортный 6 этаж. В квартире есть все необходимое для отдыха: мебель и техника остаются! Коммуникации в комплексе центральные с поквартирными счётчиками на свет, воду и электричество. Хорошая управляющая компания, приветливые соседи. Кто побывал здесь хоть раз, обязательно возвращается снова и снова, потому что место замечательное! Звоните!

Расположение

Заявка на покупку, продажу недвижимости

CENTR COLL

+7 918 670-14-14

Заинтересовал объект? Оставьте нам свою контактную информацию, мы перезвоним и расскажем подробнее

Похожие объекты

Продажа

1-к. квартира 34 кв.м, 7/9

Анапа, Межсанаторный проезд, 20
7 395 000 руб.
Подробнее
Продажа

2-к. квартира 36 кв.м, 9/9

Анапа, ул Ленина, 180А
7 300 000 руб.
Подробнее
Продажа

1-к. квартира 39 кв.м, 4/4

Анапа, ул Поликарпова, 2
6 800 000 руб.
Подробнее
Продажа

2-к. квартира 45 кв.м, 1/1

Анапа, ул Северная, 90/2
6 300 000 руб.
Подробнее
Продажа

3-к. квартира 50 кв.м, 1/1

Благовещенская, ул Таманская, 42
7 400 000 руб.
Подробнее

Мы поможем вам с выбором!