Дом 188 кв.м на участке 20 сот


Нас. пункт Джигинка
Код объекта 59885
Назначение ИЖС
Всего комнат 5
Площадь (м2) 188 / 120 / 28
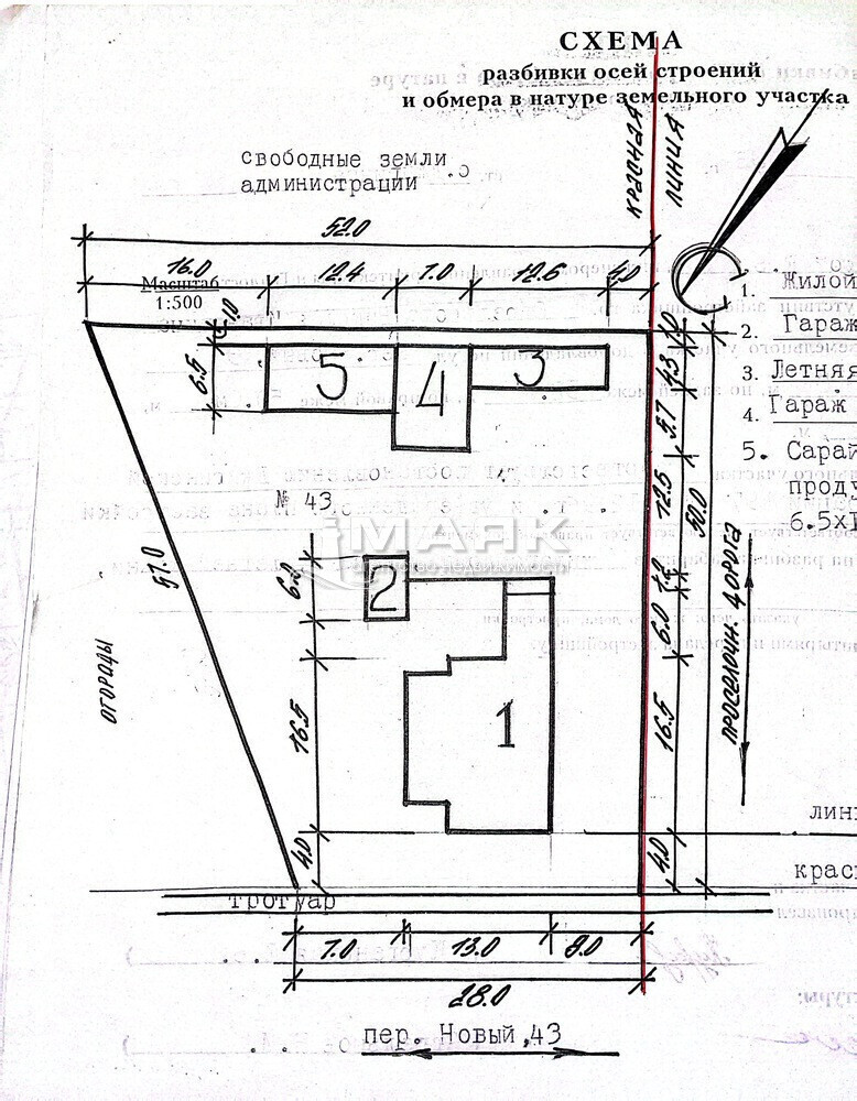
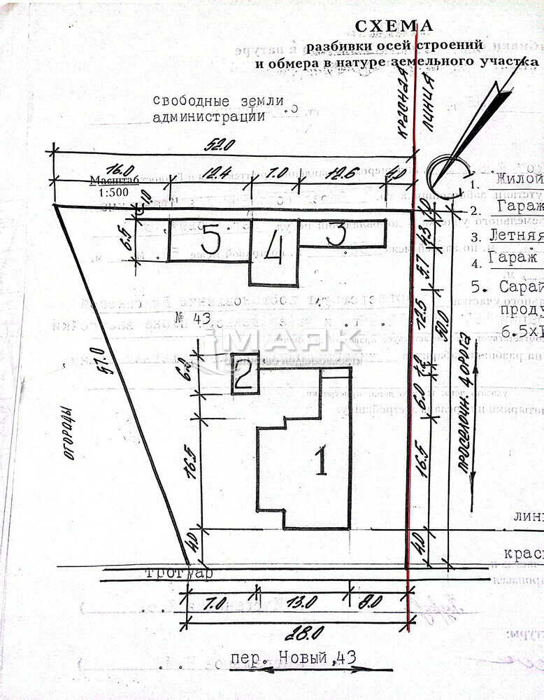
Площадь участка 20 сот.
Этаж 1
Этажей 1
Материал дома блок
Газоснабжение центральное
Водоснабжение центральное
Канализация центральная
Электроснабжение есть
Дата 21.12.2025

Описание

Арт. 126932752
Продажа.

Дом на большом земельном участке.

СУПЕР локация Анапского района.

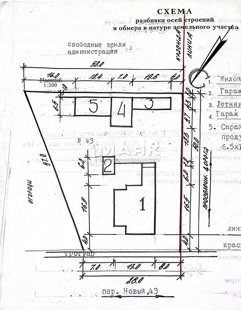
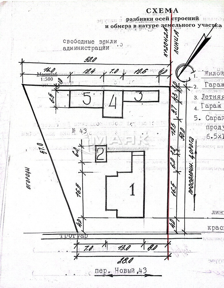
Спокойное уютное место для жизни, адрес: Краснодарский край, Анапский район, с. Джигинка, пер. Новый, д. 43

Площадь земельного участка 20 соток (кадастровый номер: 23:37:0402001:379). Фасад 80 метров (угловой).

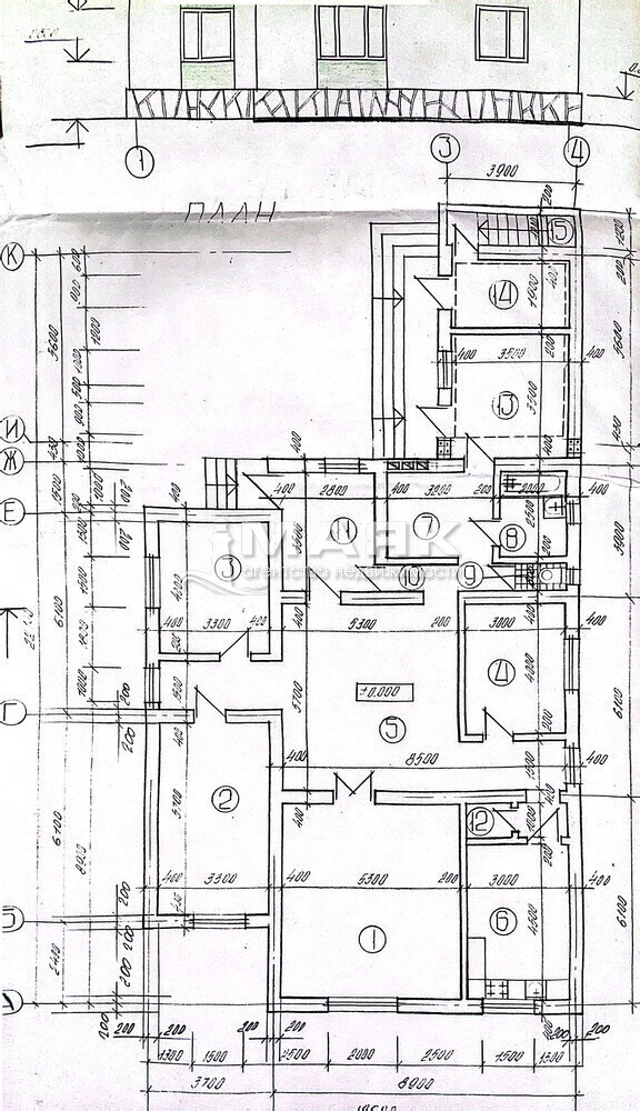
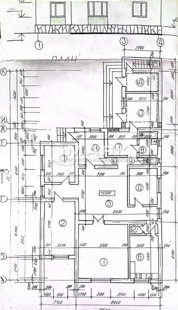
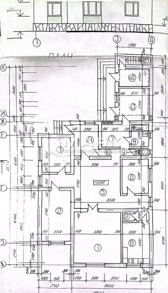
Дом площадью 188.3м2, капитальный кирпичный, предчистовая отделка (без отделки). Имеет 1 этаж, 5 комнат, кухня, ванная и туалет. Кадастровый номер: 23:37:0402001:4466

Расположен на заднем дворе не зарегистрированные постройки, кухня, хоз. блок и гараж. Состояние жилое с ремонтом и отоплением. Функционируют все коммуникации: газ, свет и вода.

Координаты для вашего удобства: 45.137997, 37.333265

Про Джигинку:
Проживают 4500 человек.
Количество дворов 67.

Удачное расположение на перекрёстке «всех дорог», через него проходит федеральная трасса М-25, что позволяет быстро добраться в такие города: Крымск, Анапа, Геленджик и Темрюк. Но самое главное достоинство расположения Джигинки это близость к Крымскому мосту - всего 60 км и вам откроются красоты Крымского полуострова.

Вернемся, продажа прямая и без обдумывания.

Документы готовы к сделке.

Заявка на покупку, продажу недвижимости

Зозуля Александр

+7 918 670-14-14

Заинтересовал объект? Оставьте нам свою контактную информацию, мы перезвоним и расскажем подробнее

Похожие объекты

Продажа

Дом 73.9 кв.м на участке 6 сот

Джигинка, ул Виноградная
6 300 000 руб.
Подробнее
Продажа

Дом 188.3 кв.м на участке 20 сот

Джигинка, Новый пер
6 500 000 руб.
Подробнее

Мы поможем вам с выбором!